Porto Alegre,

Publicada em 18 de Março de 2026 às 16:38

Prefeitura de Sapucaia do Sul entrega os primeiros lotes do Distrito Industrial

Distrito Industrial está localizado no Passo de Sapucaia, às margens da BR-118, e conta com 86 lotes

Distrito Industrial está localizado no Passo de Sapucaia, às margens da BR-118, e conta com 86 lotes

Suellen Vieira/Divulgação/JC
Compartilhe:
Francisco Conte
Francisco Conte Estagiário
A prefeitura de Sapucaia do Sul, por meio da Secretaria de Desenvolvimento Econômico e Inovação, realizou na manhã desta quarta-feira (18) a entrega dos oito primeiros lotes do Distrito Industrial de Sapucaia, em cerimônia no local.
A prefeitura de Sapucaia do Sul, por meio da Secretaria de Desenvolvimento Econômico e Inovação, realizou na manhã desta quarta-feira (18) a entrega dos oito primeiros lotes do Distrito Industrial de Sapucaia, em cerimônia no local.
De acordo com o titular da Secretaria de Desenvolvimento Econômico do município, Claudio Prates, a conclusão do empreendimento remonta a um sonho antigo da cidade: "Essa é uma obra que começou em 1998, mas que, no decorrer do tempo, passou por vários percalços", diz.
Com a entrega, surgem as projeções econômicas e sociais. Prates afirma que, por tratar-se de construções próximas às margens da rodovia ERS 118, residentes de Sapucaia que se deslocam a municípios vizinhos para trabalhar, poderão conseguir emprego dentro da própria cidade.
O projeto foca em pequenas indústrias, oferecendo terrenos que variam entre 1.000 m² e 1.300 m². Questionado sobre a infraestrutura necessária para dar conta desse novo volume de construções e consequente passagem de pessoas, o secretário assegurou que "a área já está totalmente preparada com energia elétrica instalada, água e esgoto prontos para uso". 
Ainda nessa esteira, o secretário diz que, com a entrega dos primeiros terrenos, a expectativa é que cerca de mil novos empregos diretos sejam gerados. Prates diz que, decorrente da vocação metalúrgica de Sapucaia do Sul, não faltará mão de obra para os empreendimentos. "O município possui uma população de 136.000 habitantes, com um contingente expressivo de jovens. Ainda contamos com a presença de escolas do Senai e do IFSul, o que possibilita a formação e qualificação de trabalhadores."
A prefeitura prevê a realização de um leilão de outros 36 lotes no mês de abril. Prates diz que há 60 interessados em participar dos lances.
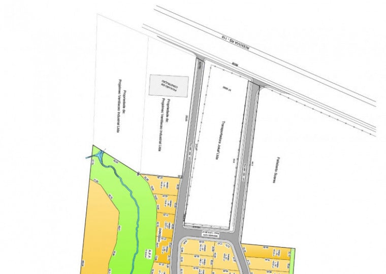
 Mapa do Distrito Industrial, que fica às margens da ERS-118 | Divugalção/JC
Mapa do Distrito Industrial, que fica às margens da ERS-118 Divugalção/JC

O Distrito Industrial está localizado no Passo de Sapucaia, às margens da ERS-118, e conta com 86 lotes.

Notícias relacionadas